Terrazzo panoramico

PorticiBellavista - Attico in vendita
35.000 €
Caratteristiche principali
190 m²
Superficie
Descrizione
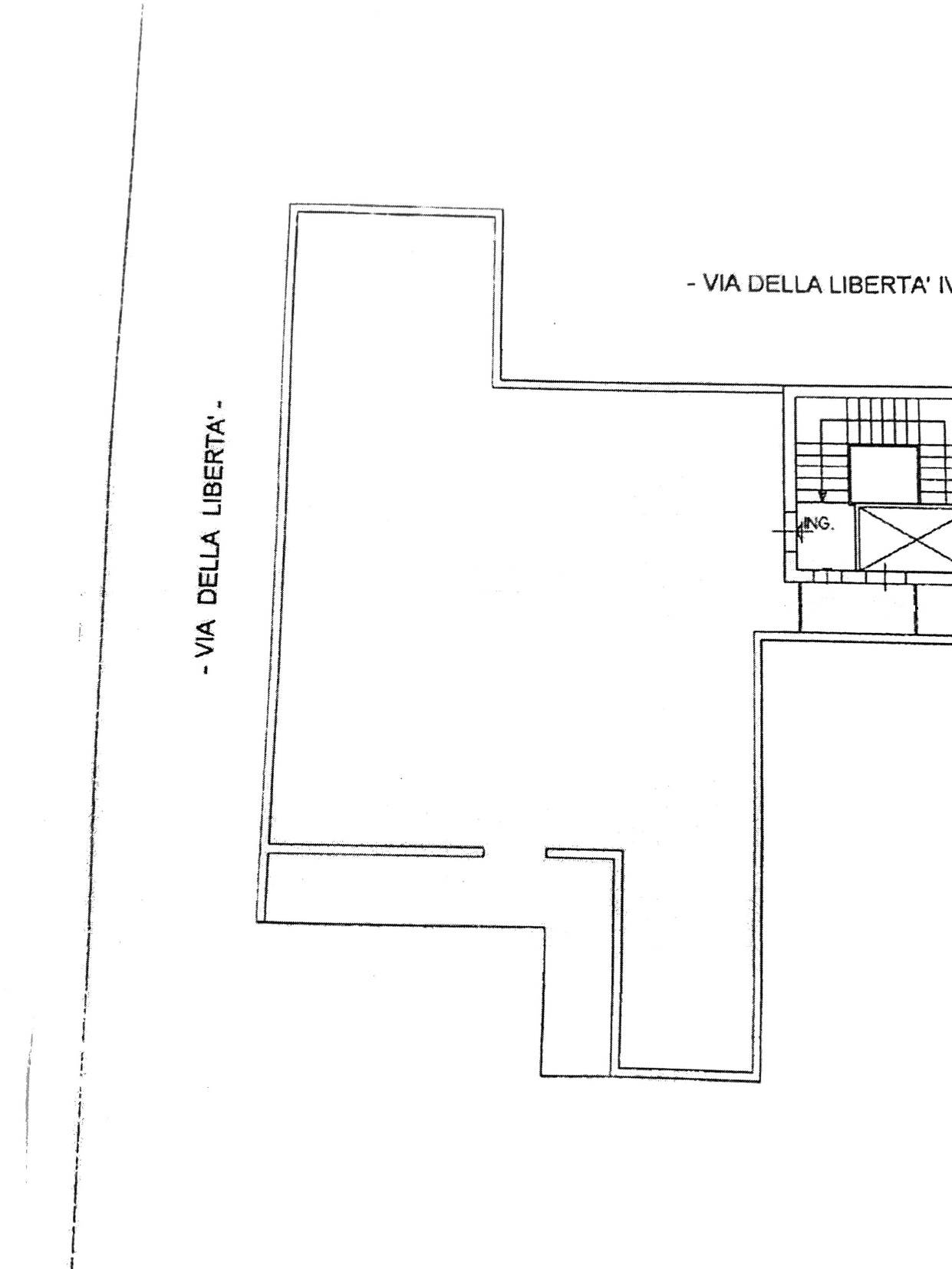
Portici, Via Libertà, tratto centrale, proponiamo in vendita un ampio terrazzo panoramico con vista mare e Vesuvio, di circa 180 mq, ideale per chi desidera vivere spazi aperti con una vista mozzafiato.
Perfetto per realizzare una zona relax all'aperto, e per momenti di convivialità
Caratteristiche
Codice:
V000059
Città:
Portici (Bellavista)
Categoria:
Attico
Mq:
190
Mq calpestabili:
180
Classe energetica:
Non classificabile
Cookie preference