Scario, splendida villa vista mare

San Giovanni a Piro - 4 o più locali in vendita
250.000 €
Caratteristiche principali
100 m²
Superficie
6
Locali
4
Camere
2
Bagni
Descrizione
Scario - località Vitetta, in uno degli angoli più suggestivi della costa cilentana, a San Giovanni a Piro, proponiamo in vendita una splendida villetta a schiera di circa 100 mq, perfetta per chi desidera vivere la vacanza lontano dal caos, immerso nella tranquillità e nella bellezza naturale.
La proprietà, in ottimo stato e completamente arredata, gode di una favolosa veduta ed è circondata da un ampio giardino privato di circa 800 mq, in parte pavimentato e arricchito da un elegante portico. Un autentico angolo di paradiso, ideale per chi ama vivere all’aria aperta.
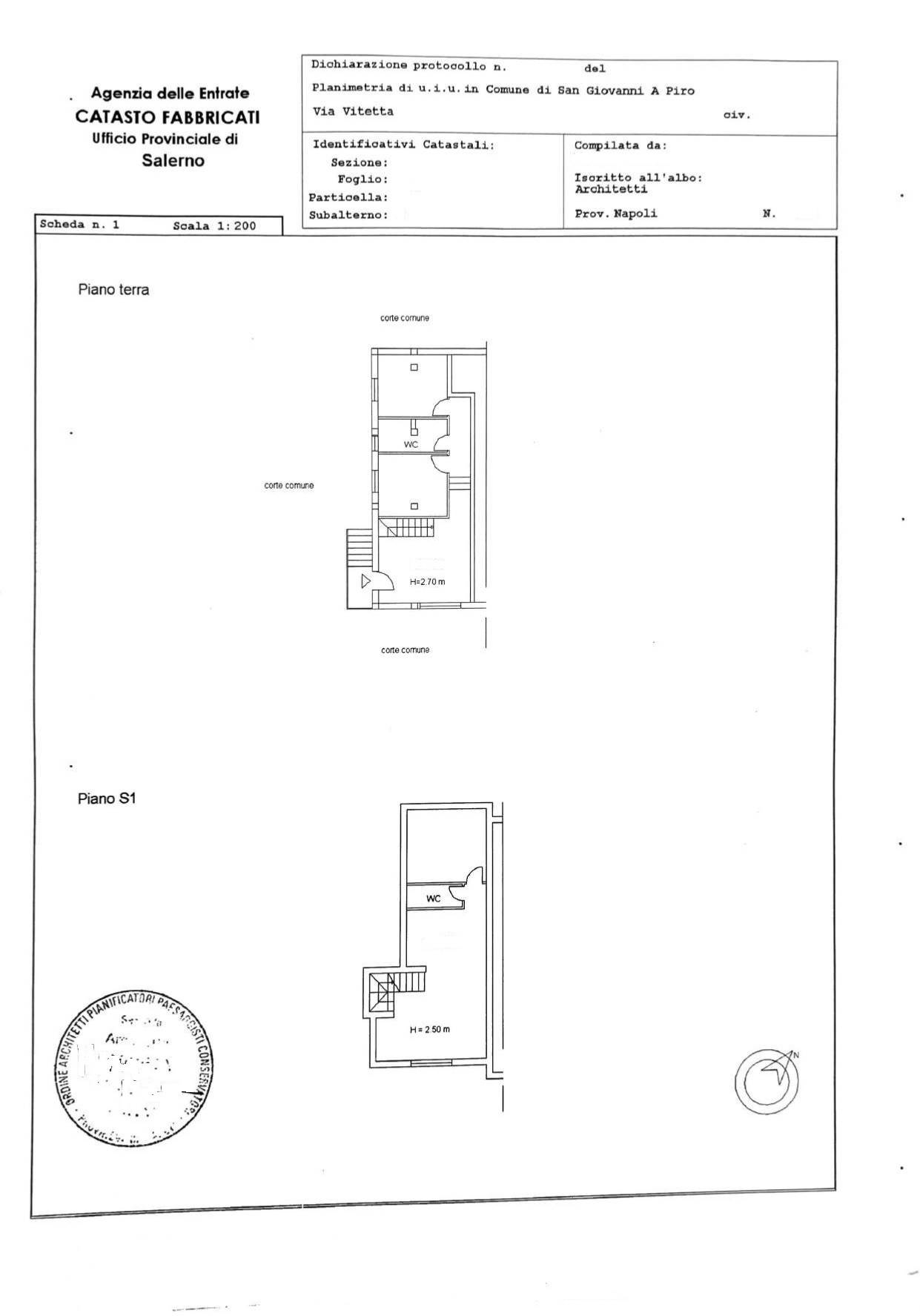
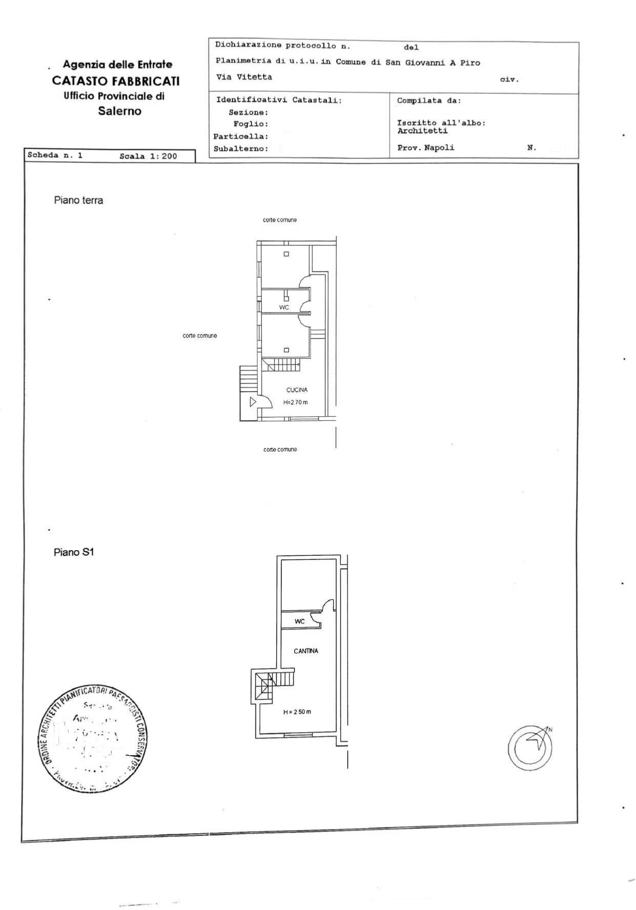
La villetta si sviluppa su due livelli. Al piano terra ci accoglie una luminosa zona giorno con cucina e camino, un bagno e un comodo vano attualmente adibito a ricovero attrezzi. All’esterno, un ampio terrazzo attrezzato con doccia, gazebo e barbecue rende questo spazio perfetto per momenti di relax o cene conviviali sotto le stelle.
Salendo al primo piano troviamo un ampio salone con vista mare, due camere da letto, un secondo bagno e un portico dove rilassarsi godendo della quiete circostante.
A completare la proprietà ci sono posti auto interni, che offrono comodità e sicurezza, permettendo di muoversi in libertà senza preoccupazioni per il parcheggio.
Grazie alla sua posizione strategica immersa nel verde, ma a pochi minuti dalle splendide spiagge di Scario, questa soluzione rappresenta un’opportunità unica, sia come casa vacanze che come investimento.
Contattaci per maggiori informazioni o per prenotare una visita. Il tuo rifugio nel Cilento ti aspetta!
Classe energetica: G
Caratteristiche
Codice:
V000056
Città:
San Giovanni a Piro
Categoria:
4 o più locali
Locali:
6
Camere:
4
Bagni:
2
Mq:
100
Mq calpestabili:
95
Posti auto:
2
Mq Giardino:
800
Terrazzi:
2
mq Terrazzo:
200
Piano:
1,5
Classe energetica:
G
Stato Immobile:
Ottimo
Grado:
Signorile
Posizione:
Collina
Panorama:
Vista Mare
Orientamento:
Nord Ovest Sud Est
Lati Liberi:
3
Giardino:
Privato
Arredi:
Arredato
Tipo Soggiorno:
Doppio
Tipo Cucina:
Abitabile
Fonte Energetica:
Gas
Accessori
Armadio a Muro
Camino
Canna fumaria
Doppi Vetri
Doppio ingresso
Inferriate
Ingresso indipendente
Porta Blindata
Ripostiglio
Tavolini Esterni
Cookie preference