Appartamento in villa con annessi 1000 mq giardino

PorticiBellavista - 4 o più locali in vendita
580.000 €
Caratteristiche principali
280 m²
Superficie
8
Locali
5
Camere
2
Bagni
Descrizione
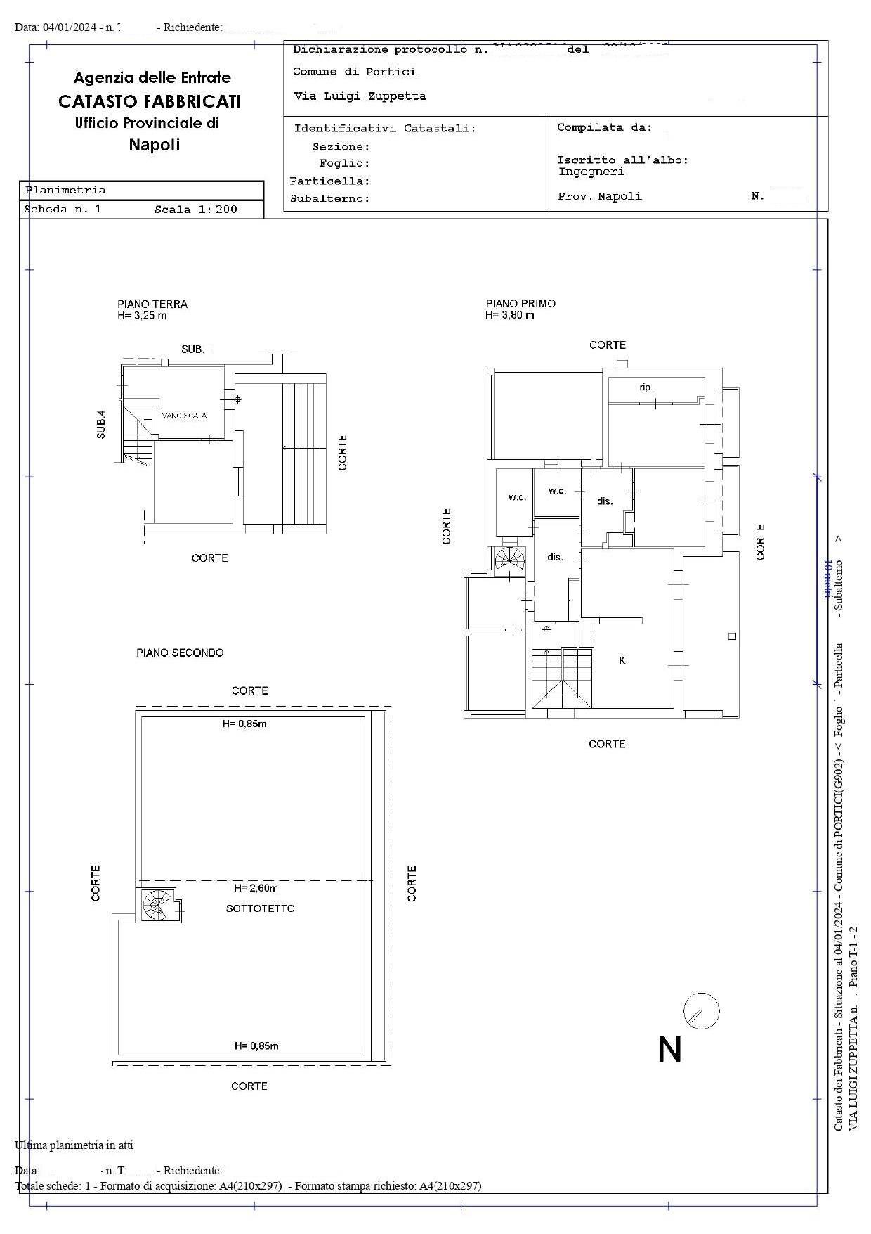
Portici, Bellavista, Via Zuppetta, in viale privato, contesto signorile ed esclusivo, proponiamo in vendita un interessante appartamento in villa indipendente su due livelli con annessi 1000 mq di giardino e posti auto La soluzione di otto vani e doppi accessori, si sviluppa su due livelli, terrazzino a livello più terrazzo di copertura al quale si accede direttamente dall’interno della casa. L’immobile e’ inserito in un contesto esclusivo, privato e più precisamente al piano terra troviamo ingresso, ampio disimpegno con camera, un’ampia scala la quale porta al piano superiore, altro disimpegno, camera, vano lavanderia, altre tre camere di cui una con cabina armadio e due bagni; nella zona giorno troviamo un’ampia cucina soggiorno con terrazzino.
La soluzione gode di una tripla esposizione, riscaldamento autonomo, si presenta in ottime condizioni sia interne che esterne.
Classe energetica G
Caratteristiche
Codice:
V000052
Città:
Portici (Bellavista)
Categoria:
4 o più locali
Locali:
8
Camere:
5
Bagni:
2
Mq:
280
Mq calpestabili:
250
Posti auto:
5
Mq Giardino:
1000
Balconi:
1
Mq Balcone:
18
Terrazzi:
2
mq Terrazzo:
100
Classe energetica:
G
153,8
Stato Immobile:
Buono
Grado:
Signorile
Panorama:
Vista Aperta
Orientamento:
Nord Ovest Sud Est
Lati Liberi:
4
Giardino:
Privato
Arredi:
Non Arredato
Tipo Soggiorno:
Doppio
Tipo Cucina:
Abitabile
Riscaldamento:
Autonomo
Tipo Riscaldam.:
Caldaia
Tipo Impianto:
Radiatori
Fonte Energetica:
Gas
Accessori
Antifurto
Aria Condizionata
Armadio a Muro
Doppi Vetri
Porta Blindata
Ripostiglio
Tapparelle Elettriche
Video Sorveglianza
Zanzariere
Mappa
via Zuppetta, 13 - Portici (NA)
Cookie preference